Обяви За нас Контакти
Продава 3-СТАЕН
град Хасково, Тракийски
71 750 €
140 330.80 лв.

(747 €, 1 461.01 лв./m2)
Цената е с включено ДДС
История на цената
Публикувана в 16:25 на 4 декември, 2023 год.
Обявата е посетена 23 пъти.
Площ:
96 m2
Етаж:
2-ри от 5
Строителство:
Тухла, 2026 г.

Описание на имота:


Агенция за недвижими имоти МИРА предлага за продажба ТРИСТАЕН АПАРТАМЕНТ ново строителство с луксозно изпълнение, разположен в кв. Тракийски, гр. Хасково.
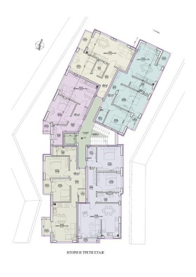
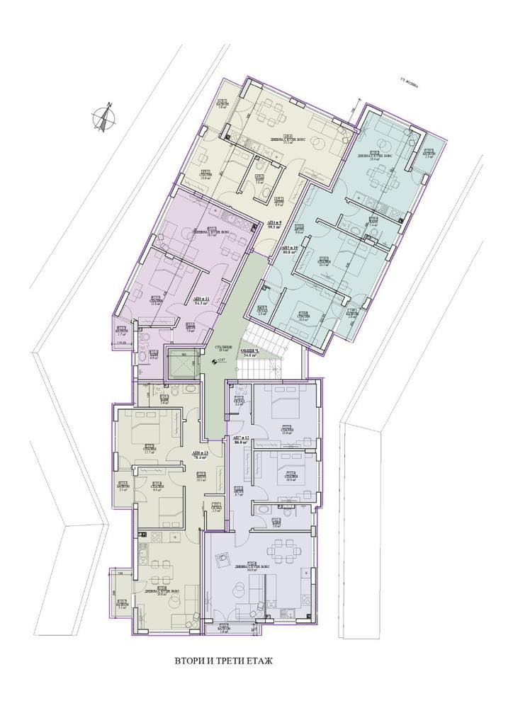
Апартамент 7 и 12
Жилището е ситуирано на втори жилищен етаж с площ 95.67 кв.м. и се състои от: входно антре, дневна с кухненски бокс с излаз на тераса, родителска спални, детска спалня, баня с тоалетна, складово помещение;
Изложение Юг/Изток
Районът се развива изключително бързо, като предлага бърз достъп до центъра на града. Старт на строителството 1 март 2024 г. Акт 16 след 24 месеца. Сградата се състои от един входа с 5 жилищни етажа. Има свободни двустайни, тристайни, многостайни с различни изложения и разпределения.
Жилищата се издават на шпакловка и замазка, с просторни и комфортни стаи. Има възможност за покупка на партерен гараж 35 000 лева и ПАРКОМЕСТА на цена от 25 000 лева. Намира се на тихо и комуникативно място. В близост има училища, детски градини, магазини. Жилището има висок инвестиционен потенциал разположено е в развиващ се квартал с нарастваща роля в градската среда.
Безкомпромисно качество на конструкцията, използваните материали и предпочитаните технологии. Модерно и качествено строителство, при спазване на съвременните европейски стандарти в бранша. Висок клас на използваните материали. Монолитна стоманобетонна конструкция, оразмерена на земетръс. Външни и вътрешни стени от червени керамични тухли на водещ европейски производител. Осигурени топло-, хидро- и шумо- изолации. Вътрешни мазилки и замазки. Инсталации, изпълнени със сертифицирани материали на реномирани производители. Стилна фасада с класическа градска архитектура. Качествена дограма с високо-енергийни и ниско-емисионни стъкла. Красиви, здрави и сигурни външни врати. Представителни общи части с модерни вътрешни мазилки в топли цветове и настилки по стълбища и коридори от естествен камък и най-висок клас асансьор. Материали, осигуряващи лесна поддръжка, дълговечност и чувство за уют в дома. Oтговаряме за качеството на предоставяните услуги и консултации, свързани с покупка, продажба, управление и кредитиране! НЕ ОТЛАГАЙТЕ ПОКУПКАТА НА НОВИЯТ СИ ДОМ ! НАПРАВЕТЕ ГО ОЩЕ СЕГА!! ЗАПАЗЕТЕ ИМОТА СРЕЩУ 1000лв!!! РАЗСРОЧЕНО ПЛАЩАНЕ БЕЗ ОСКЪПЯВАНЕ!!!
Особености
Тухла
В строеж
Асансьор
Контрол на достъпа
Саниран
За контакт:
0878690677
Агенция:
ИМОТИ-МИРА
0878 690 671
ИМОТИ-МИРА logo
Медал за прослужено време
В imot.bg от 2013 г.
imoti_mira.imot.bg
Адрес:
област Хасково, гр. Хасково, ул. 'Преслав' 28
http://www.imoti-mira.com
ИЗПРАТИ ЗАПИТВАНЕ
ИЗПРАТИ ЗАПИТВАНЕТО

Продава 3-СТАЕН
град Хасково, Тракийски
Обява: 1c170169990725566

71 750 €
140 330.80 лв.
История на цената
(747 €, 1 461.01 лв./m2)

Цената е с включено ДДС
ЗАПАЗИ ОБЯВАТА

Местоположение: град Хасково, Тракийски

Допълнителни данни за имотите в района и сравнение с други райони

Покажи

Период

и 1 месец

* Средните цени са определени чрез медианна стойност